top of page
Strategically positioned roof lights and setback stairwell allow for double volumes and ample daylight, with rooftop views from the loft. Working closely with the client and contractor, both the build-ability and vision were shared.


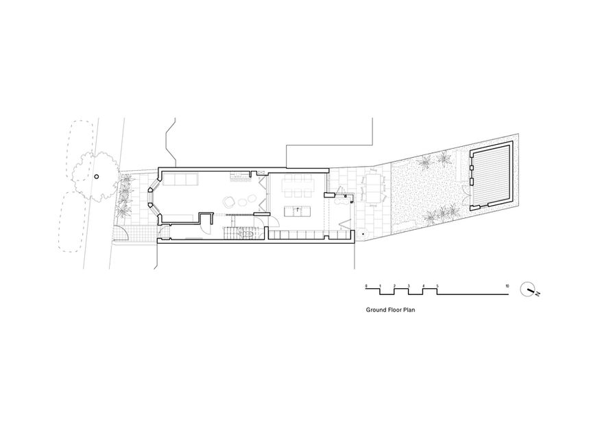
Complete strip out, renovation, rear side-return and loft extension of an existing Victorian row house in Hackney. Increased property from a two bed with compartmental rooms and a small bathroom, to a four-bed house with two bathrooms, a guest WC, and flowing spaces, opening up to the garden.

HACKNEY NEST
Client : Residential
Timescale : Completed
Size : M/L
Location : Hackney, London, UK
bottom of page
























